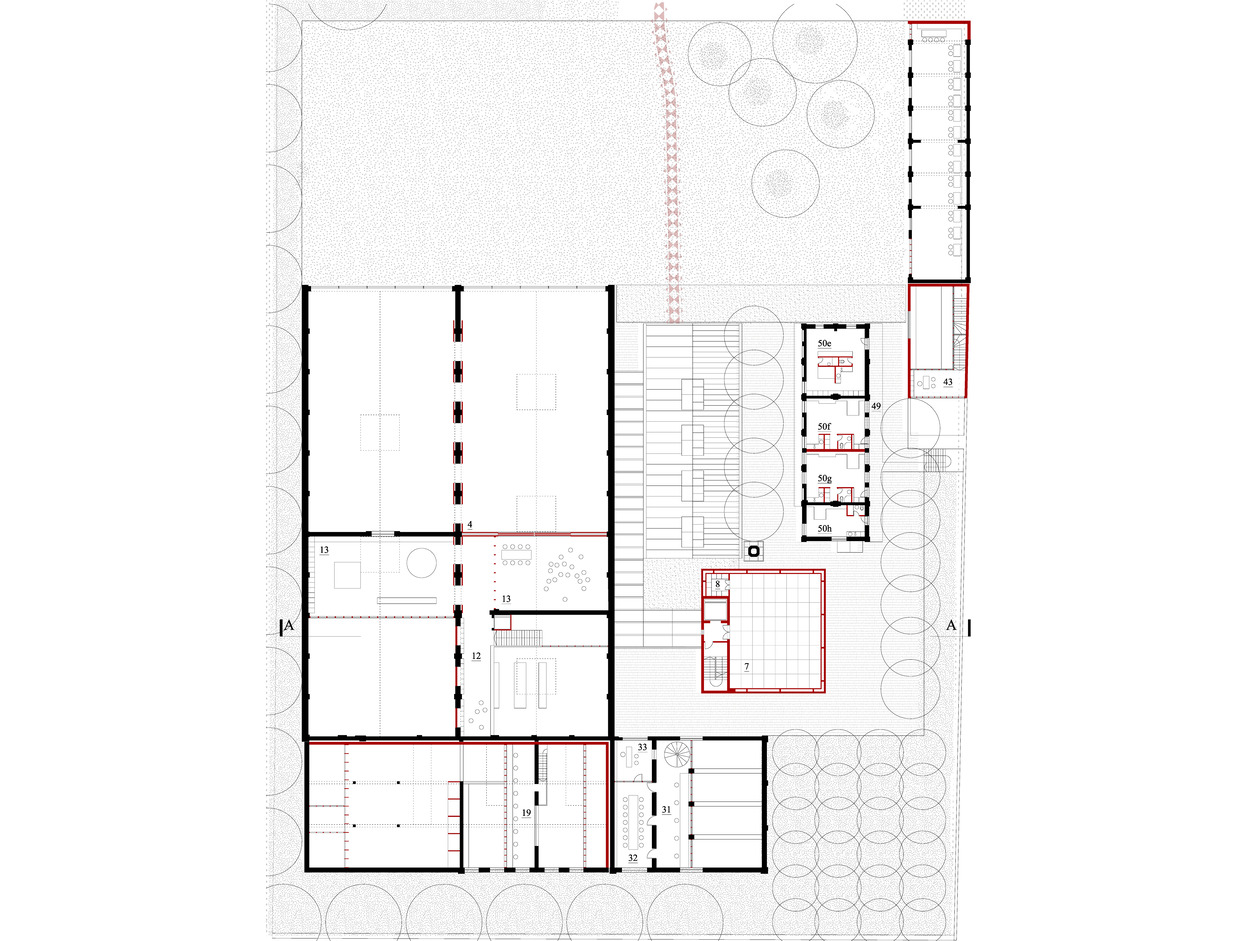
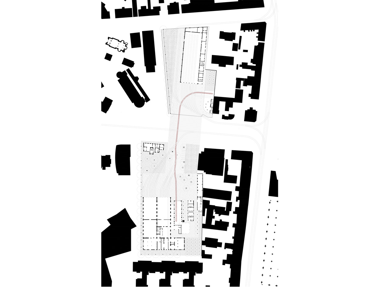
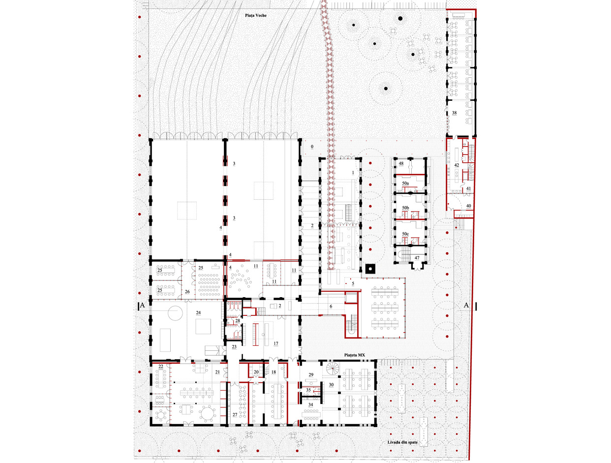
MultipleXity Art Center

The Center for Art, Technology, and Experiment, MultipleXity, Timișoara. 2020. Competition, 5th place

SOME PRINCIPLES
a. Highlighting Diffuse Heritage: Emphasizing the qualities of diffuse heritage is essential to sustainability in the built environment. Technical solutions should follow this principle. The project largely preserves the site’s existing structures, optimizing them to fit the required functions.
b. Flexible Space Use: Flexibility supports sustainability by allowing for future adaptability. The project designs flexible indoor and outdoor spaces, suitable for both independent use and dynamic interactions.
c. Moderated Technological Avant-garde: Materiality: This includes two approaches—i) restoring old buildings to reveal original techniques (e.g., exposed brick and woodwork) and ii) incorporating modern elements like phosphorescent asphalt, LED-lit black metal galleries, and the contrasting Black Cube. // Decorative Utility: A technological museum should convey novelty. The design nods to Art Deco’s optimistic spirit with restored woodwork, vertical design accents above entrances, and decorative ground patterns marking entry points.

Architects: Poster _ Irina Meliță, Stefan Simion, Cristian Badescu, Stefania Hirleata, Radu Tirca

The Center for Art, Technology, and Experiment, MultipleXity, Timișoara. 2020. Competition, 5th place

SOME PRINCIPLES a. Highlighting Diffuse Heritage: Emphasizing the qualities of diffuse heritage is essential to sustainability in the built environment. Technical solutions should follow this principle. The project largely preserves the site’s existing structures, optimizing them to fit the required functions. b. Flexible Space Use: Flexibility supports sustainability by allowing for future adaptability. The project designs flexible indoor and outdoor spaces, suitable for both independent use and dynamic interactions. c. Moderated Technological Avant-garde: Materiality: This includes two approaches—i) restoring old buildings to reveal original techniques (e.g., exposed brick and woodwork) and ii) incorporating modern elements like phosphorescent asphalt, LED-lit black metal galleries, and the contrasting Black Cube. // Decorative Utility: A technological museum should convey novelty. The design nods to Art Deco’s optimistic spirit with restored woodwork, vertical design accents above entrances, and decorative ground patterns marking entry points.

Architects: Poster _ Irina Meliță, Stefan Simion, Cristian Badescu, Stefania Hirleata, Radu Tirca

Lorem ipsum dolor sit amet, consectetur adipiscing elit. Vivamus convallis ultricies tortor, sed placerat magna lacinia nec. Suspendisse potenti. Proin cursus lectus et sem consectetur, at convallis orci scelerisque. Phasellus a finibus erat. Aliquam sodales malesuada eros, id posuere magna posuere at. Proin nec ultricies mauris. Nam accumsan lacus sit amet nisi efficitur, ac varius est cursus. Integer at varius enim. Mauris blandit lorem sed sem tempus sodales. Vestibulum volutpat ligula non justo viverra, ac tincidunt ligula porta. Phasellus vel libero libero. Nullam ultricies lectus erat, ut vehicula enim ultrices a. Integer eget feugiat velit, sed condimentum odio. Quisque ut convallis lacus. Sed fringilla varius eros, sed scelerisque nisl pretium at. Cras accumsan, justo eget feugiat ultricies, ipsum nulla suscipit leo, sit amet vehicula libero elit vel felis. Sed gravida vulputate sapien, nec suscipit sem condimentum sit amet. Maecenas fringilla, lorem sed interdum gravida, turpis nunc bibendum erat, nec tempor arcu metus quis elit. Nullam feugiat venenatis orci, ut consequat felis scelerisque nec. Suspendisse potenti. Quisque sodales tellus ac tortor tincidunt congue. Integer nec odio sit amet sapien hendrerit laoreet. Nunc sed metus dui. Sed vulputate nisl orci, ac posuere lacus viverra et. Integer porta sapien a felis condimentum scelerisque. Phasellus sed diam ac justo facilisis auctor id sed eros. Nulla at feugiat felis. Vestibulum ante ipsum primis in faucibus orci luctus et ultrices posuere cubilia curae; Nulla facilisi. Fusce nec dignissim nulla. Phasellus id nisl eu lorem malesuada fermentum at at est. Integer luctus, tortor sit amet rhoncus suscipit, mauris magna tristique velit, id rhoncus turpis erat et sapien. Cras imperdiet nisi orci, nec vulputate quam egestas non. Aenean vehicula vehicula diam ut dignissim. Maecenas hendrerit ligula non lectus tincidunt aliquet. Nunc sollicitudin, augue eget auctor tincidunt, elit odio rutrum velit, ac facilisis libero lorem ac ante. Aenean malesuada erat sapien, non efficitur purus dapibus a. In hac habitasse platea dictumst. Duis pellentesque nisi eu justo volutpat, sed posuere mauris tincidunt. Integer sed arcu nec lorem ornare posuere id sit amet odio. Donec aliquet, magna eget pellentesque faucibus, justo urna lobortis purus, nec volutpat sapien velit sed nulla. Vestibulum euismod leo nec mauris gravida aliquet. Suspendisse eu ligula eget sapien vestibulum condimentum. Etiam feugiat pretium felis, in fermentum nulla convallis nec. Vestibulum et justo eu elit gravida cursus ac id arcu. Suspendisse potenti. Nunc dignissim tincidunt orci id pretium. Nulla facilisi. Mauris placerat magna vel nunc pellentesque pretium. Sed non nisi nisi. Vestibulum bibendum nunc sed scelerisque vulputate. Nulla facilisi. Pellentesque consequat, purus sit amet lacinia fermentum, turpis purus facilisis velit, ac condimentum velit nunc at sapien. Nam sit amet orci nulla. Aliquam pharetra ligula id odio pharetra viverra. Phasellus ac faucibus justo. Cras sit amet enim nec libero eleifend sollicitudin. Suspendisse ullamcorper libero a suscipit tempor. Phasellus rutrum ligula id elit egestas hendrerit. Integer ac lorem et odio efficitur lobortis id a tortor. Pellentesque habitant morbi tristique senectus et netus et malesuada fames ac turpis egestas. Nulla posuere justo id lorem tempus, vel gravida erat lobortis. Proin sodales nunc euismod lectus lacinia tincidunt. Sed eget lorem volutpat, placerat mi et, dictum lorem. Suspendisse potenti. Curabitur ut vestibulum felis. Pellentesque pharetra dui felis, eu sodales ex efficitur non. Ut sit amet dui nulla. Proin malesuada ante et neque lacinia fermentum. Suspendisse vulputate justo mauris, eget auctor turpis porttitor non. Cras nec posuere nunc. Curabitur placerat ex non ante auctor, non efficitur sem rutrum. Curabitur at tellus tincidunt, iaculis magna non, elementum metus. Fusce ac facilisis enim. Duis porttitor turpis non tincidunt bibendum. Aliquam bibendum felis at ligula gravida, id vestibulum leo tincidunt. Donec suscipit vehicula sapien, eget dapibus turpis bibendum vel. Sed gravida tellus est, vitae sollicitudin odio dapibus eu. Etiam nec elit eget leo ullamcorper malesuada at eget nulla. Aenean eleifend luctus lectus in dictum. Curabitur lobortis lorem non tellus efficitur, a hendrerit metus accumsan. Donec vitae ex dui. Nulla eget orci in nisi rhoncus ullamcorper. Donec in arcu viverra, interdum lacus et, efficitur quam. Pellentesque vestibulum nisi vel pharetra varius. Donec facilisis justo vitae turpis pellentesque volutpat. Mauris vehicula convallis lorem a faucibus. Nunc tincidunt fermentum nunc a tempor. Sed bibendum lectus nec congue faucibus. Pellentesque fermentum erat in tincidunt lobortis. Nullam fringilla, velit at viverra eleifend, urna turpis tincidunt dolor, vel varius lacus turpis nec leo. Sed bibendum risus id magna tincidunt convallis. Ut nec odio pharetra, vestibulum odio ac, faucibus orci. Phasellus placerat justo arcu, vitae aliquet lectus vehicula sit amet. Phasellus molestie odio in leo gravida, non ultricies odio rhoncus. In fermentum, metus vel iaculis efficitur, erat orci tincidunt lorem, ac lobortis justo felis quis risus. Nulla tempor ante turpis, ut vehicula enim ullamcorper at. Ut cursus vestibulum vehicula. Duis dictum gravida dolor, a aliquam enim interdum ac. Null